天津包厢半门吊起重机 5吨10吨电动葫芦门式起重机 坚固耐用
天津包厢半门吊起重机 5吨10吨电动葫芦门式起重机 坚固耐用
产品价格:¥30000(人民币)
  • 规格:5T
  • 发货地:天津
  • 品牌:
  • 最小起订量:1台
  • 诚信商家
    会员级别:钻石会员
    认证类型:企业认证
    企业证件:通过认证

    商铺名称:重起(天津)起重设备销售有限公司

    联系人:薛超(先生)

    联系手机:

    固定电话:

    企业邮箱:1062894917@qq.com

    联系地址:天津市北方五金城B16-107,天津龙门吊,天津天车厂家,天津行吊厂家

    邮编:300240

    联系我时,请说是在万物包装网上看到的,谢谢!

    商品详情

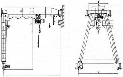
      电动葫芦半门式起重机与CD1、MD1等型号的电动葫芦配套使用,是一种有轨运行的中小型起重机。本产品为一般用途起重机,多用于机械加工车间的物料搬运。下横梁专用减速机可使起重机内侧作业空间更大。

      ??根据其机构特点可分为以下几种型号:

      ??BMH------单主梁葫芦式半门机 额定起重量0.5~16t



      ??BMHⅠ----单柱式葫芦半门机 额定起重量0.5~5t

      ??BMHN-----欧式半门机 额定起重量0.5~10t

      ??MHB型电动葫芦半门式起重机与CD、MD、等型号的电动葫芦配套使用,是一种有轨运行的中小型门式起重机。MHB型含义为单梁半门式起重机,其适用起重量:3T、5T、10T、16t、20T;跨度:7.5m、9M、19M、22.5米;起升高度:

      ??6M、9M、12M、18M;工作制度适用A3~A5,工作环境温度为一25℃~4。℃范围内。

      ??MHB型半门式起重机结构图纸:


      ??MHB型电动葫芦半门式起重机操纵形式有无线遥控器、有线地面操纵和操纵室操纵。电动葫芦半门式起重机为一般用途起重机,多用于一般机械制造、装配车间和仓库等场所,用来搬运和装卸物料,常用于室外、露天场所。

      ??MHB型电动葫芦半门式起重机不宜在易燃、易爆的介质中或具有很大湿度腐蚀性气体的场所工作。也不适用于吊运熔化的金属、有毒物和易燃物的工作 。



    0571-87774297